Professionelle Planung für Abgrabungen, Erschließung & Bauprojekte

Bei der Planung geht es darum, Ihre Bau- und Abbauprojekte von Anfang an professionell, rechtssicher und effizient umzusetzen. Seit Jahren unterstützen wir unsere Kunden bei Erschließungs- und Abgrabungsplanungen, erstellen alle nötigen Unterlagen für Genehmigungen und koordinieren die Zusammenarbeit mit Behörden und Fachstellen.

Abgrabungsplanung & Antragsunterlagen

Sie planen die Neuanlage eines Steinbruchs oder benötigen eine Abgrabungsgenehmigung? Wir erstellen für Sie sämtliche Unterlagen zur Einreichung bei der zuständigen Genehmigungsbehörde – schnell, vollständig und professionell.

 

Wir begleiten Sie außerdem bei Behördengängen und besprechen die Umsetzung Ihrer Planung mit den relevanten Fachstellen, wie:

  • Naturschutzbehörde

  • Wasserwirtschaftsamt

  • Amt für Ernährung, Landwirtschaft und Forsten

Zudem kümmern wir uns um die Einholung notwendiger Gutachten, wie:

  • Sprenggutachten

  • Spezielle artenschutzrechtliche Prüfungen (saP)

  • Schall- und Lärmprognosen

  • Erschütterungsgutachten

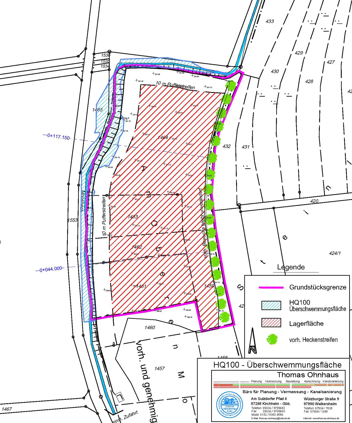
HQ 100 & wasserrechtliche Genehmigungen

Für Bauvorhaben in Überschwemmungsgebieten führen wir die Ermittlung der Überschwemmungs- und Verdrängungsflächen bei einem HQ 100-Ereignis durch. Dabei übernehmen wir die örtliche Vermessung, erstellen notwendige Unterlagen und stimmen die Anträge direkt mit den zuständigen Behörden ab.

 

Wir führen ebenfalls Gebietsuntersuchungen für geplante Bauprojekte durch, z. B.:

  • Erweiterung einer Gewerbefläche (Deckblatt, LP_HQ100, QP_117)

  • Geplante Wohnhausneubauten (Deckblatt-1, LP+Kataster, Schnitte3_2)

  • Vorhabenbezogene Bebauungspläne

So stellen wir sicher, dass Ihre Projekte wasserrechtlich abgesichert und genehmigungsfähig sind.

Erstellung von Plänen & Dokumentationen

Für Ihre Abgrabung oder Bauvorhaben erstellen wir präzise:

  • Antragsunterlagen

  • Abbaulagepläne & Abbauschnitte

  • Rekultivierungspläne

  • Übersichtskarten

Selbstverständlich stehen wir auch für Erschließungsplanungen zur Verfügung – vom Straßenbau über Kanal- und Wasserleitungen bis zur HQ 100-Ermittlung.

Ihr Ansprechpartner für Planung

Wir begleiten Sie kompetent von der ersten Idee bis zur finalen Genehmigung und darüber hinaus. Sprechen Sie uns an – wir setzen Ihre Projekte zuverlässig, rechtssicher und professionell um.